Rezultate
Activitatea 1 (subactivitatea 1.1):

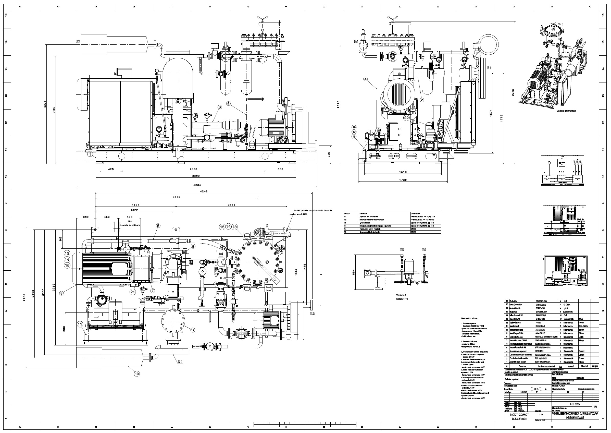
Vedere generală a Ansamblului statiei de aer comprimat ECS 20/25 care deserveste Autoclava Scholz 2010

Schema de conducte si instrumentare P&ID a statiei de aer comprimat ECS 20/25

Schema de integrare a Staţiei de aer comprimat în ansamblul echipamentului care deserveşte Autoclava Scholz 2010

Calculul teoretic pentru alegerea radiatorului Staţiei de aer comprimat
Activitatea 1 (subactivitatea 1.2) si respectiv Activitatea 1 (subactivitatea 1.3)

Desen de instalare a componentelor proiectate, fabricate si/sau achizitionate - Ansamblu statie de aer comprimat pentru echipament Autoclava Scholz 2010 de polimerizare materiale compozite.
Activitatea 1 (subactivitatea 1.4)

Stadiul actual al activitatii de instalare/ montaj- Skidul statiei de comprimare) Vedere laterala si frontala
Activitatea 5 (subactivitatea 5.1):

Conceptul acustic bazat pe design cu structura bionica (concept seratii) pentru reducerea nivelului de zgomot produs de curgerea turbulenta care interacţioneaza cu bordul de atac al paletelor de stator al ventilatoarelor motoarelor de tip turbofan-inspirat din morfologia aripi unei bufnite.



Configuraţii de palete de stator care integreaza conceptul hibrid pe paleta G4




Analiza comparativa FFT. Albastru: referinta, rosu: G4_H3, verde: GV_H2
Institutul Naţional de Cercetare Dezvoltare Turbomotoare COMOTI îşi consolidează poziţia de partener strategic în domeniul aeronautic la nivel European prin implementarea cu succes a proiectului "Development of Research infrastructure for EMerging Advanced composite materials dedicated to innovative STator ogv technologies for aircrafts Engine noise Reductionă, acronim REMASTER
În contextul schimbărilor geopolitice din ultimii ani dar şi ca urmare a schimbării de paradigmă în abordarea problemelor climatice globale atât la nivelul factorilor de decizie politică, precum şi în cadrul mişcărilor ecologiste cu influen?ă asupra acestor factori de decizie şi a opiniei publice, Comisia Europeană a propus în 2019, un set de iniţiative politice cunoscut sub numele generic de Pactul Verde European (European Green Deal - EGD). Pactul a fost aprobat de către Consiliul European în decembrie 2019, şi adoptat de către Parlamentul European în ianuarie 2020 şi prevede reducerea, până în 2030, a gazelor cu efect de seră cu cel puţin 50 % faţă de nivelul anului 1990, şi atingerea neutralităţii climatice la nivel continental până în 2050. Pactul Verde European include şapte domenii de acţiune politică printre care şi cel de Mobilitate sustenabilă, o viziune ambiţioasă pentru sectorul transporturilor.
În acest context, strategia privind cercetarea şi politicile de dezvoltare în sectorul aeronautic sunt puternic influenţate atât de aceste iniţiative politice enunţate de EGD dar şi de viziunea programatică asupra dezvoltării durabile în acest domeniu, definită în Flightpath 2050 - Europe's Vision for Aviation, document elaborat de ACARE - Advizory Council for Aeronautical Research în Europe. Ţintele clar definite în acest document vizează dezvoltarea şi implementarea de noi tehnologii, măsuri şi proceduri care să conducă la reducerea cu 75% a emisiilor de CO2/pasager x km şi respectiv cu 90% a emisiilor de NOx, în timp ce emisiile de zgomot perceput pentru avioanele civile trebuie să se diminueze cu 65%, având ca reper valorile definite în 2000.
În lumina acestor deziderate, liderii europeni ai industriei de motoare de aeronave s-au angajat să construiască motoare noi cu grade de comprimare ridicate, care integrează noi tehnologii de reducere a nivelului de zgomot, cu o eficienţă energetică mai ridicată, pentru a îndeplini standardele globale de reducere a emisiilor fixate la orizontul anilor 2050 pentru piaţa de aeronave civile.
Transpunerea în practică a acestor obiective se realizează de către Uniunea Europeană prin intermediul Programului Clean Sky (Clean Aviation începând cu anul 2022), principalul program de cercetare şi inovare al Uniunii Europene pentru saltul aviaţiei către un viitor durabil şi neutru din punct de vedere climatic.
I.N.C.D. Turbomotoare COMOTI şi-a integrat şi consolidat constant eforturile cu aceste strategii ale Comisiei Europene în domeniul aeronautic, efectele concrete ale acestui demers fiind reprezentate de contribuţia prin rezultate notabile la atingerea obiectivelor acestora, în cadrul unor proiecte de referinţă la nivel European: SILENCE®-FP5 (2001), X3-NOISE -FP6 (2008) VITAL-FP6 (2004), OPENAIR-FP7 (2009), NINHA-FP7 (2010), ESPOSA-FP7 (2011), TIDE-FP7 (2013), ANIMA-H2020 (2017).
INNOSTAT-CSJU-H2020 (2019) şi REMASTER- H2020-POC (2020) sunt două proiecte de anvergură finanţate de Comisia Europeană - INNOSTAT şi din FEDR (80%) si din bugetul national (20%) - REMASTER, primul în curs de implementare în institut iar cel de-al doilea finalizat în 27.04.2023, care, prin abordarea unor direcţii emergente ale cercetării aeronautice internaţionale privind dezvoltarea de noi tehnologii pentru motoarele de aviaţie care vor echipa viitoarele avioane în 2023, susţin şi reconfirm? totodat? potenţialul I.N.C.D. Turbomotoare COMOTI de cercetare-dezvoltare în acest domeniu.
Proiectul "Innovative Statoră, acronim INNOSTAT, în valoare de 2,78 milioane de euro, finanţat în octombrie 2019 în cadrul Programului CleanSky 2 Joint Undertaking (CSJU), un parteneriat public-privat între Comisia Europeană şi industria aeronautică Europeană, şi în care I.N.C.D. Turbomotoare COMOTI este partener, are ca misiune dezvoltarea demonstratoarelor de palete de stator ventilator care integrează noi tehnologii pasive de reducere a nivelului de zgomot, pentru motoarele turboventilator cu grad foarte mare de diluţie (UHBR), prevăzute să echipeze noile avioane civile în 2030, realizând astfel baza unei noi generaţii de motoare.
Proiectul "Development of Research infrastructure for EMerging Advanced composite materials dedicated to innovative STator ogv technologies for aircrafts Engine noise Reductionă, acronim REMASTER, gândit complementar proiectului INNOSTAT-CSJU-H2020 (2019), ţinteşte într-un orizont mai larg contribuţia la crearea unui reper strategic al infrastructurii experimentale româneşti în domeniul materialelor avansate pentru aplicaţii aerospaţiale. Acesta a fost implementat în perioada 28.04.2020-27.04.2023, cu un buget total eligibil în valoare de 7.014.647,75 lei (finanţare nerambursabilă acordată de AMPOC - 80% contribuţia Fondului European de Dezvoltare Regională şi 20% contribuţie din bugetul naţional), prin Programul Operaţional Competitivitate 2014-2020, şi reprezintă o iniţiativă de creare a unei platforme experimentale de referinţă pe plan regional, prin extinderea, consolidarea infrastructurii şi creşterea capabilităţilor de cercetare-dezvoltare în domeniul materialelor inteligente, cu greutate redusă şi performanţe structurale ridicate, al proceselor de fabricaţie avansate, şi al investigaţiilor experimentale dedicate tehnologiilor şi inovaţiilor emergente referitoare la reducerea emisiilor de zgomot aplicate motoarelor aeronavelor civile ale viitorului.
Implementarea cu succes a activitătilor de cercetare a proiectului a condus la atingerea integrală a obiectivelor proiectului, atât din perspectiva dezvoltării infrastructurii de cercetare şi a utilizării optime a acesteia în acord cu ţintele definite în proiect, dar mai ales din punct de vedere ştiinţific, creşterea nivelului tehnologic, în cadrul proiectului obţinându-se rezultate notabile privind definirea unei noi tehnologii pasive de reducere a nivelului de zgomot (5dB global, valoare superioară obiectivului proiectului de 2dB) produs de curgerea turbulentă care interacţionează cu bordul de atac al paletelor de stator de ventilator tip OGV (Outer Guide Vane), în motoarele de tip turbofan (turboventilator).

Concept pasiv de reducere a nivelului de zgomot produs de curgerea turbulenta care interacţionează cu bordul de atac al paletelor de stator ale ventilatoarelor motoarelor de tip turbofan
Totodată, dezvoltarea acestui concept acustic utilizand atât tehnologii emergente de fabricaţie aditivă cât şi tehnologii convenţionale utilizate la nivel industrial, validarea numerică, validarea experimentală a performanţelor pe stand de testare aeroacustic dezvoltat în cadrul proiectului, şi în final fabricarea din materiale compozite ranforsate cu fibre de carbon a demonstratoarelor la scară reală care integrează aceste noi rezultate, etapă premergătoare transferului la nivel industrial, constituie principalele rezultate şi contribuţii la misiunea cercetărilor la nivel european în domeniul aeronautic care are ca ţintă dezvoltarea de motoare noi, cu grade de comprimare ridicate, care integrează noi tehnologii de reducere a nivelului de zgomot, cu o eficienţă energetică mai ridicată, care să răspundă standardelor globale de reducere a emisiilor fixate la orizontul anilor 2050 pentru piaţa de aeronave civile.

Masurare dimensionala 3D a profilului aerodinamic
Dezvoltarea infrastructurii de cercetare în domeniul materialelor inteligente, cu greutate specifică redusă şi performanţe structurale ridicate, al proceselor de fabricaţie avansate, şi al investigaţiilor experimentale dedicate tehnologiilor şi inovaţiilor pentru domeniul aeronautic, dar şi rezultatele ştiintifice obţinute în cadrul proiectului REMASTER, contribuie indubitabil la consolidarea bazei colaborărilor deja de tradiţie cu entităţi de renume în domeniul aviaţiei la nivel European (SAFRAN Aircraft Engines), deschizând totodată perspectiva diversificării portofoliului de servicii de cercetare pe care institutul îl poate oferi terţilor, ca parte în proiecte naţionale şi europene.

Matrita tehnologica (configuratie inchisa) dezvoltata prin fabricatie aditiva utilizand fotopolimeri si tehnologia Digital Light Processing (DLP), imprimanta 3Dmagna Photocentric

Tehnologia de fabricatie a reperului de aviatie din materiale compozite ranforsate cu fibre de carbon: Autoclava SCHOLZ INCD Turbomotoare COMOTI, ansamblu matrita si Schema detaliată a ansamblului însăcuit şi vidat pentru polimerizare


Structura profil aerodinamic paleta de stator ventilator din materiale compozite ranforsate cu fibre de carbon
Toate aceste eforturi au condus la creşterea vizibilităţii institutului şi a cercetării româneşti în plan European, în comunitatea ştiinţifică şi pe segmentul de piaţă în care activează, prin diversificarea, modernizarea şi extinderea infrastructurii deja existente, dar şi prin rezultatele ştiinţifice obţinute cu posibilitate de aplicare în alte domenii conexe, şi totodată, au îmbunătăţit semnificativ procesul de aliniere a cercetării şi dezvoltării româneşti la standardele europene. Din punct de vedere social, proiectul va conduce la o creştere a cunoştinţelor în domeniul materialelor compozite avansate, a proiectării, fabricaţiei, testării de structuri pentru motoare de aviaţie. Din punct de vedere al mediului, soluţiile generate de proiect (tehnologii de reducere a emisiilor de zgomot perceput pentru avioanele civile, utilizarea de materiale compozite avansate, mai uşoare, mai rezistente şi cu durabilitate sporită care implică un consum de combustibil scăzut şi implicit o reducere a emisiilor poluante), au un impact benefic direct şi contribuie la atingerea ţintelor anterior prezentate şi care vizează reducerea emisiilor şi a impactului asupra schimbărilor climatice globale.
Ansamblul activitatilor proiectului au fost finalizate in proportie de 100% si cu atingerea integrala a obiectivelor definite conform Cererii de finantare atasate la ctr. 12/1.1.3H/28.04.2020.
Lista rezultatelor proiectului conform Cererii de finantare atasate la ctr12/1.1.3H/28.04.2020:
1. D1.1 - Proiectarea statiei de furnizare a aerului comprimat. Livrabil D1.1-FINAL a fost remis în Anexa 5 la RP1 ctr.12/1.1.3H/28.04.2020.
2. D1.2 - Componente statie aer comprimat fabricate. Livrabil D1.2-FINAL a fost remis în Anexa 1 la RP3 ctr.12/1.1.3H/28.04.2020.
3. D1.3 - Componente statie aer comprimat achizitionate. Livrabil D1.3-FINAL a fost remis în Anexa 2 la RP3 ctr.12/1.1.3H/28.04.2020.
4. D1.4 - Ansamblul Statia de furnizare a aerului comprimat (obiect fizic- hardware). Livrabil D1.4-FINAL a fost remis în Anexa 1 la RP4 ctr.12/1.1.3H/28.04.2020.
5. D1.5 - Punere in functiune Statie aer comprimat. Raport de încercare a functionalitatii. Livrabil D1.5-FINAL a fost remis în Anexa 1 la RP5 ctr.12/1.1.3H/28.04.2020.
6. D1.6 - Proceduri de achizitie Camera Curata cls. 100.000-ISO 8. Livrabil D1.6-FINAL a fost remis în Anexa 3 si Anexa 4 la RP2 ctr.12/1.1.3H/28.04.2020.
7. D1.7 - Raport de instalare si încercare functionala a Camerei Curate cls. 100,000-ISO 8. Livrabil D1.7-FINAL a fost remis în Anexa 5 la RP2 ctr.12/1.1.3H/28.04.2020.
8. D2.1 - Proceduri de achizitie Imprimanta 3D cu Carbon. Livrabil D2.1-FINAL a fost remis în Anexa 6 la RP2 ctr.12/1.1.3H/28.04.2020.
9. D2.2 - Echipament achizitionat: Imprimanta 3D cu Carbon. Livrabil D2.2-FINAL a fost remis în Anexa 7 la RP2 ctr.12/1.1.3H/28.04.2020.
10. D2.3 - Imprimanta 3D cu Carbon Raport de istalare si punere în functiune. Livrabil D2.3-FINAL a fost remis în Anexa 8 la RP2 ctr.12/1.1.3H/28.04.2020.
11. D3.1 - Proceduri de achizitie Echipamente de Analiza termica si mecanica. Livrabil D3.1-FINAL a fost remis în Anexa 9 si Anexa 10 la RP2 ctr.12/1.1.3H/28.04.2020.
12. D3.2 - Raport de instalare si punere în functiune. Livrabil D3.2-FINAL a fost remis în Anexa 11 la RP2 ctr.12/1.1.3H/28.04.2020.
13. D4.1 - Proceduri de achizitie Masina de taiere cu jet de apa. Livrabil D4.1-FINAL a fost remis în Anexa 2 la RP4 ctr.12/1.1.3H/28.04.2020.
14. D4.2 - Proceduri de achizitie echipament: Masa de taiere automata de preimpregnate. Livrabil D4.2-FINAL a fost remis în Anexa 3 la RP4 ctr.12/1.1.3H/28.04.2020.
15. D4.3 Proceduri de achizitie Echipament: Sistem rotativ pentru masuratori dimensionale 3D.
Nota: Echipamentul nu a mai fost achizitionat. O nota justificativa de fundamentare a fost remisa in cadrul Notificarii nr.6, aprobata de DGOIC prin raspuns nr. 8994/25.06.2020, ulterior Planul de achizitii fiind actualizat prin Notificarea nr.11 aprobata de DGOIC prin raspuns nr. 9928/18.08.2020.
16. D4.4 Raport de instalare si punere în functiune Echipament: Masina de taiere cu jet de apa. Livrabil D4.4-FINAL a fost remis în Anexa 4 la RP4 ctr.12/1.1.3H/28.04.2020.
17. D4.5 Raport de instalare si punere în functiune Echipament: Masa de taiere automata de preimpregnate. Livrabil D4.5-FINAL a fost remis în Anexa 2 la RP5 ctr.12/1.1.3H/28.04.2020.
18. D4.6 Raport de instalare si punere în functiune Echipament: Sistem rotativ pentru masuratori dimensionale 3D
Nota: Echipamentul nu a mai fost achizitionat. O nota justificativa de fundamentare a fost remisa in cadrul Notificarii nr.6, aprobata de DGOIC prin raspuns nr. 8994/25.06.2020, ulterior Planul de achizitii fiind actualizat prin Notificarea nr.11 aprobata de DGOIC prin raspuns nr. 9928/18.08.2020.
19. D5.1 Raport privind proiectarea si analiza prin simulari numerice a paletelor de stator ventilator OGV care integreaza noul concept/tehnologie de reducere a nivelului de zgomot. Livrabil D5.1 -FINAL a fost remis în Anexa 1 la RP7 ctr.12/1.1.3H/28.04.2020.
20. D5.2 Raport privind rezultatele campaniei de analize termo-mecanice. Livrabil D5.2. Raport privind rezultatele campaniei de analize termo-mecanice_FINAL a fost remis în Anexa 1 la RP8 ctr.12/1.1.3H/28.04.2020.
21. D5.3 Prezentarea paletei/paletelor de stator ventilator OGV care integreaza noul concept/noua tehnologie de reducere a nivelului de zgomot (model experimental). Raport privind performantele. Livrabil D5.3. Prezentarea paletei/paletelor de stator ventilator OGV care integreaza noul concept/noua tehnologie de reducere a nivelului de zgomot (model experimental). Raport privind performantele_VI-FINAL a fost remis în Anexa 1 la RP13 ctr.12/1.1.3H/28.04.2020.
22. D6.1 Raport de progres I
Livrabil D6.1 Anexa 2. Raport de progres nr. 1 eferent perioadei 28.04.2020- 31.07.2020
Livrabil D6.1 Anexa 12. Raport de progres nr. 2 eferent perioadei 01.08.2020-31.10.2020.
Livrabil D6.1 Anexa 12. Raport de progres nr. 3 eferent perioadei 01.11.2020-31.01.2021
Livrabil D6.1 Anexa 12. Raport de progres nr. 4 eferent perioadei 01.02.2021-30.04.2021
Livrabil D6.1 Anexa 12. Raport de progres nr. 5 eferent perioadei 01.05.2021-31.07.2021.
Livrabil D6.1 Anexa 12. Raport de progres nr. 6 eferent perioadei 01.08.2021-31.10.2021
23. D6.2 Raport de progres II
Livrabil D6.1 Anexa 12. Raport de progres nr. 7 eferent perioadei 01.11.2021-31.01.2022.
Livrabil D6.1 Anexa 12. Raport de progres nr. 8 eferent perioadei 01.02.2022-30.04.2022
Livrabil D6.1 Anexa 12. Raport de progres nr. 9 eferent perioadei 01.05.2022-31.07.2022.
Livrabil D6.1 Anexa 12. Raport de progres nr. 10 eferent perioadei 01.08.2022-28.09.2022.
Livrabil D6.1 Anexa 12. Raport de progres nr. 11 eferent perioadei 29.09.2022-31.12.2022.
Livrabil D6.1 Anexa 12. Raport de progres nr. 12 eferent perioadei 01.01.2023-31.03.2023.
24. D6.3 Raport Final (Livrabil D6.1 Anexa 12. Raport de progres nr. 13 Final eferent perioadei 01.04.2023-27.04.2023).
25. D6.4 Raportul de management al riscului I (Livrabilul D6.5 Raportul de management al riscului I - Anexa 6 la RP2 ctr.12/1.1.3H/28.04.2020
Livrabilul D6.5 Raportul de management al riscului II - Anexa 6 la RP3 ctr.12/1.1.3H/28.04.2020.
Livrabilul D6.5 Raportul de management al riscului III - Anexa 4 la RP5 ctr.12/1.1.3H/28.04.2020.
Livrabilul D6.5 Raportul de management al riscului IV- Anexa 2 la RP6 ctr.12/1.1.3H/28.04.2020
Livrabilul D6.5 Raportul de management al riscului VI- Anexa 3 la RP7 ctr.12/1.1.3H/28.04.2020.
Livrabilul D6.5 Raportul de management al riscului VII- Anexa 2 la RP8 ctr.12/1.1.3H/28.04.2020
Livrabilul D6.5 Raportul de management al riscului VIII- Anexa 2 la RP9 ctr.12/1.1.3H/28.04.2020.
Livrabilul D6.5 Raportul de management al riscului IX- Anexa 2 la RP10 ctr.12/1.1.3H/28.04.2020.
Livrabilul D6.5 Raportul de management al riscului X- Anexa 2 la RP11 ctr.12/1.1.3H/28.04.2020.
Livrabilul D6.5 Raportul de management al riscului XI- Anexa 2 la RP12 ctr.12/1.1.3H/28.04.2020)
26. D6.5 Raportul de management al riscului II: Livrabilul D6.5 Raportul de management al riscului XII-FINAL remis în Anexa 2 la RP13 ctr.12/1.1.3H/28.04.2020.
27. D6.6 Raportul privind alocarea resurselor I (Livrabil D6.6 Raportul privind alocarea resurselor I a fost remis în Anexa 13 la RP3 ctr.12/1.1.3H/28.04.2020; Livrabil D6.7 Raportul privind alocarea resurselor II a fost remis în Anexa 13 la RP4 ctr.12/1.1.3H/28.04.2020; Livrabil D6.7 Raportul privind alocarea resurselor III este remis în Anexa 5 la RP5 ctr.12/1.1.3H/28.04.2020; Livrabil D6.7 Raportul privind alocarea resurselor IV este remis în Anexa 3 la RP6 ctr.12/1.1.3H/28.04.2020; Livrabil D6.7 Raportul privind alocarea resurselorII-partea V este remis în Anexa 4 la RP7 ctr.12/1.1.3H/28.04.2020; Livrabil D6.7 Raportul privind alocarea resurselorII-partea VI este remis în Anexa 3 la RP8 ctr.12/1.1.3H/28.04.2020; Livrabil D6.7 Raportul privind alocarea resurselorII-partea VII este remis în Anexa 3 la RP9 ctr.12/1.1.3H/28.04.2020; Livrabil D6.7 Raportul privind alocarea resurselorII-partea VIII este remis în Anexa 3 la RP10 ctr.12/1.1.3H/28.04.2020; Livrabil D6.7 Raportul privind alocarea resurselorII-partea IX este remis în Anexa 3 la RP11 ctr.12/1.1.3H/28.04.2020; Livrabil D6.7 Raportul privind alocarea resurselorII-partea X este remis în Anexa 3 la RP12 ctr.12/1.1.3H/28.04.2020)
28. D6.7 Raportul privind alocarea resurselor II: Livrabil D6.7 Raportul privind alocarea resurselorII-partea XI-FINAL este remis în Anexa 3 la RP13 ctr.12/1.1.3H/28.04.2020.
29. D7.1 Raport privind proiectarea site-ului proiectului: Livrabilul D7.1 Raport privind proiectarea site-ului proiectului a fost remis în Anexa 16 la RP2 ctr.12/1.1.3H/28.04.2020.
30. D7.2 Actualizarea site-ului proiectului I (Librabilul D7.2 Actualizarea site-ului proiectului I este remis în Anexa 7 la RP3 ctr.12/1.1.3H/28.04.2020; Librabilul D7.2 Actualizarea site-ului proiectului II este remis în Anexa 7 la RP4 ctr.12/1.1.3H/28.04.2020)
31. D7.3 Actualizarea site-ului proiectului II (Librabilul D7.4 Actualizarea site-ului proiectului III este remis în Anexa 10 la RP5 ctr.12/1.1.3H/28.04.2020; Librabilul D7.4 Actualizarea site-ului proiectului IV este remis în Anexa 8 la RP6 ctr.12/1.1.3H/28.04.2020)
32. D7.4 Actualizarea site-ului proiectului III (Librabilul D7.5 Actualizarea site-ului proiectului V este remis în Anexa 9 la RP7 ctr.12/1.1.3H/28.04.2020; Librabilul D7.5 Actualizarea site-ului proiectului VI este remis în Anexa 8 la RP8 ctr.12/1.1.3H/28.04.2020)
33. D7.5 Actualizarea site-ului proiectului IV (Librabilul D7.5 Actualizarea site-ului proiectului VII este remis în Anexa 8 la RP9 ctr.12/1.1.3H/28.04.2020; Librabilul D7.5 Actualizarea site-ului proiectului VIII este remis în Anexa 7 la RP10 ctr.12/1.1.3H/28.04.2020; Librabilul D7.5 Actualizarea site-ului proiectului IX este remis în Anexa 9 la RP11 ctr.12/1.1.3H/28.04.2020; Librabilul D7.5 Actualizarea site-ului proiectului X este remis în Anexa 8 la RP12 ctr.12/1.1.3H/28.04.2020)
34. D7.6 Actualizarea site-ului proiectului V-Final: Librabilul D7.5 Actualizarea site-ului proiectului XI-FINAL este remis în Anexa 6 la RP13 ctr.12/1.1.3H/28.04.2020.
35. D 7.7 Poster de prezentare a proiectului: Livrabilul D 7.7 (remis în Anexa 11 la RP1 Poster_autocolante)
36. D7.8 Articol de presa de prezentare a proiectului: Livrabilul D7.8 Articol de presa de prezentare a proiectului- FINAL (remis în Anexa 8 la RP13)
37. D7.9 Plan de exploatare: Livrabilul D7.9 Plan de exploatare - FINAL (remis în Anexa 9 la RP13)
38. D 6.8- Raportul Audit final al proiectului. DA. Comanda pentru Auditul financiar extern pentru proiectul cu acronimul REMASTER ctr.12/1.1.3H/28.04.2020 a fost emisa, Raportul de audit financiar va fi emis in luna iunie 2023.
Dr. ing. Raluca Maier, director de proiect POC ctr.12/1.1.3H/28.04.2020, şef Departament Materiale Compozite pentru Aviaţie, I.N.C.D. Turbomotoare COMOTI
"Proiect co-finanţat din Fondul European de Dezvoltare Regională prin Programul Operaţional Competitivitate 2014-2020"
|